Aprenda arquitetura com os melhores cursos do Brasil Mobflix Conhecer a Mobflix
Projetos e Design

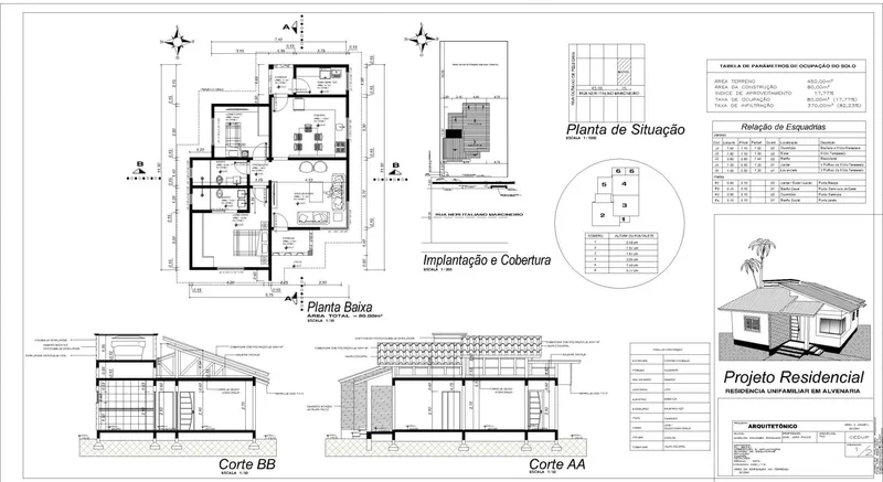
planta baixa

O que é uma Planta Baixa?

A planta baixa é um desenho técnico que representa uma edificação vista de cima, como se um plano horizontal a cortasse a uma altura de aproximadamente 1,50 metro do piso. É uma das peças gráficas mais importantes de um projeto arquitetônico, pois mostra a disposição dos cômodos, as dimensões dos espaços, a localização de paredes, portas, janelas e outros elementos construtivos. A planta baixa é a base para o desenvolvimento de todo o projeto, desde a concepção inicial até a execução da obra.

Para o cliente, a planta baixa é a principal ferramenta para visualizar e compreender a proposta do arquiteto. Para os construtores, é o guia que orienta a execução da obra, indicando as medidas e a localização de cada elemento. A planta baixa não é apenas um desenho, mas uma linguagem universal na construção civil, que permite a comunicação precisa entre todos os envolvidos no projeto.

Elementos Essenciais de uma Planta Baixa

Uma planta baixa completa e bem detalhada deve conter uma série de elementos que garantem a sua correta interpretação. As paredes são representadas por linhas mais grossas, e as portas e janelas são indicadas com símbolos específicos. As cotas são as linhas que indicam as medidas dos ambientes e dos elementos construtivos, e são fundamentais para a execução da obra. Os níveis indicam as alturas dos pisos, e são importantes em projetos com mais de um pavimento ou com desníveis.

Além desses elementos, a planta baixa deve conter a indicação do Norte, a escala do desenho, o nome de cada ambiente e a sua área em metros quadrados. A projeção da cobertura, com seus beirais e calhas, também deve ser representada com linhas tracejadas. O layout do mobiliário, embora não seja obrigatório, ajuda o cliente a visualizar o espaço e a entender as proporções dos ambientes.

Exemplo de uma planta baixa com todos os seus elementos.
Uma planta baixa bem elaborada é a chave para um projeto de sucesso.

Como Ler e Interpretar uma Planta Baixa

Para ler uma planta baixa, é preciso conhecer a simbologia utilizada no desenho arquitetônico. As portas são representadas por um arco que indica o sentido de abertura, e as janelas são representadas por linhas finas no meio das paredes. As cotas são as linhas com números que indicam as medidas em centímetros ou metros. As linhas mais grossas representam as paredes, e as mais finas representam os demais elementos, como pisos e mobiliário.

Ao analisar uma planta baixa, observe a circulação entre os ambientes, a iluminação e a ventilação natural, e a funcionalidade dos espaços. Verifique se as dimensões dos cômodos são adequadas para o uso pretendido e se o layout do mobiliário atende às suas necessidades. Uma boa planta baixa é aquela que apresenta uma solução inteligente e funcional para o programa de necessidades do cliente.

Ponto-Chave

Aprender a ler uma planta baixa é fundamental para qualquer pessoa que queira construir, reformar ou comprar um imóvel, pois permite uma compreensão clara do projeto e evita surpresas desagradáveis no futuro.

A Importância da Escala

A escala é a relação entre as dimensões do desenho e as dimensões reais da edificação. Ela é fundamental para que o desenho represente a realidade de forma proporcional e precisa. As escalas mais comuns em plantas baixas são 1:50 e 1:100. Na escala 1:50, cada centímetro no desenho corresponde a 50 centímetros (ou meio metro) na realidade. Na escala 1:100, cada centímetro no desenho corresponde a 100 centímetros (ou um metro) na realidade.

A escolha da escala depende do tamanho da edificação e do nível de detalhamento desejado. Para projetos maiores, como edifícios de múltiplos andares, utiliza-se a escala 1:100 ou 1:200. Para projetos residenciais, a escala 1:50 é a mais adequada, pois permite um bom nível de detalhamento. É fundamental que a escala seja indicada na planta baixa, para que as medidas possam ser conferidas com um escalímetro.

EscalaUso ComumNível de Detalhamento
1:50Projetos residenciaisAlto
1:100Edifícios e projetos maioresMédio
1:200Grandes complexos e urbanismoBaixo
1:25Detalhes construtivosMuito Alto
Arquiteto trabalhando em uma planta baixa com um escalímetro.
O escalímetro é a ferramenta utilizada para medir e conferir as dimensões em um desenho em escala.

Software para Criar Plantas Baixas

Atualmente, a maioria dos arquitetos utiliza softwares de computador para criar plantas baixas e outros desenhos técnicos. Os softwares mais populares são o AutoCAD, o Revit e o ArchiCAD. O AutoCAD é um software de desenho 2D e 3D amplamente utilizado no mercado. O Revit e o ArchiCAD são softwares BIM (Building Information Modeling), que permitem a criação de um modelo 3D inteligente da edificação, do qual as plantas baixas e outros desenhos são extraídos automaticamente.

Existem também softwares mais simples e intuitivos, voltados para o público em geral, que permitem a criação de plantas baixas de forma rápida e fácil. Softwares como o SketchUp, o Sweet Home 3D e o Planner 5D são ótimas opções para quem quer desenhar a planta da sua própria casa ou testar diferentes layouts de mobiliário.

Dica Profissional

Ao contratar um arquiteto, peça para ver o projeto em 3D. A visualização tridimensional ajuda a compreender melhor o projeto e a tomar decisões mais assertivas.

Ferramentas Gratuitas para Arquitetos

Acesse nossas calculadoras profissionais e simplifique seus projetos.

Acessar Ferramentas

Normas Técnicas para Desenho de Plantas Baixas

No Brasil, o desenho de plantas baixas e de outros projetos de arquitetura deve seguir as normas técnicas da ABNT (Associação Brasileira de Normas Técnicas). A principal norma que rege o desenho técnico de edificações é a NBR 6492 - Representação de projetos de arquitetura. Essa norma estabelece os padrões para a representação de elementos construtivos, simbologia, cotagem, escalas e outros aspectos do desenho técnico.

O cumprimento das normas técnicas é fundamental para garantir a qualidade e a precisão dos projetos, facilitar a comunicação entre os profissionais envolvidos e evitar erros na execução da obra. Um projeto que segue as normas da ABNT é um sinal de profissionalismo e de comprometimento com a qualidade da construção.

Detalhe de uma planta baixa com cotas e simbologia de acordo com as normas da ABNT.
O uso das normas técnicas da ABNT garante a clareza e a precisão do projeto arquitetônico.

Perguntas Frequentes

Qual a diferença entre planta baixa e planta de situação?

A planta baixa mostra a edificação em detalhe, enquanto a planta de situação mostra a localização da edificação no terreno e no seu entorno, incluindo ruas, lotes vizinhos e outros elementos urbanos.

O que é uma planta baixa humanizada?

A planta baixa humanizada é uma versão mais artística e colorida da planta baixa, com a inclusão de texturas, mobiliário, vegetação e até mesmo pessoas. Ela é utilizada para fins de apresentação e venda do projeto.

Preciso de um arquiteto para fazer uma planta baixa?

Para a aprovação do projeto na prefeitura e para a execução da obra, é obrigatória a assinatura de um arquiteto ou engenheiro responsável. Para estudos preliminares ou para uso pessoal, você pode desenhar sua própria planta baixa.

Onde consigo a planta baixa de um imóvel já construído?

Você pode solicitar a planta baixa na prefeitura da sua cidade, no cartório de registro de imóveis ou com a construtora do imóvel. Se não encontrar, será preciso contratar um profissional para fazer o levantamento arquitetônico do imóvel.

Arqpedia

Equipe Arqpedia

Conteúdo produzido por arquitetos e engenheiros especializados. Siga-nos no Instagram.